Abitazione a Piano 1°
Marche n.72 · Copertino (LE)
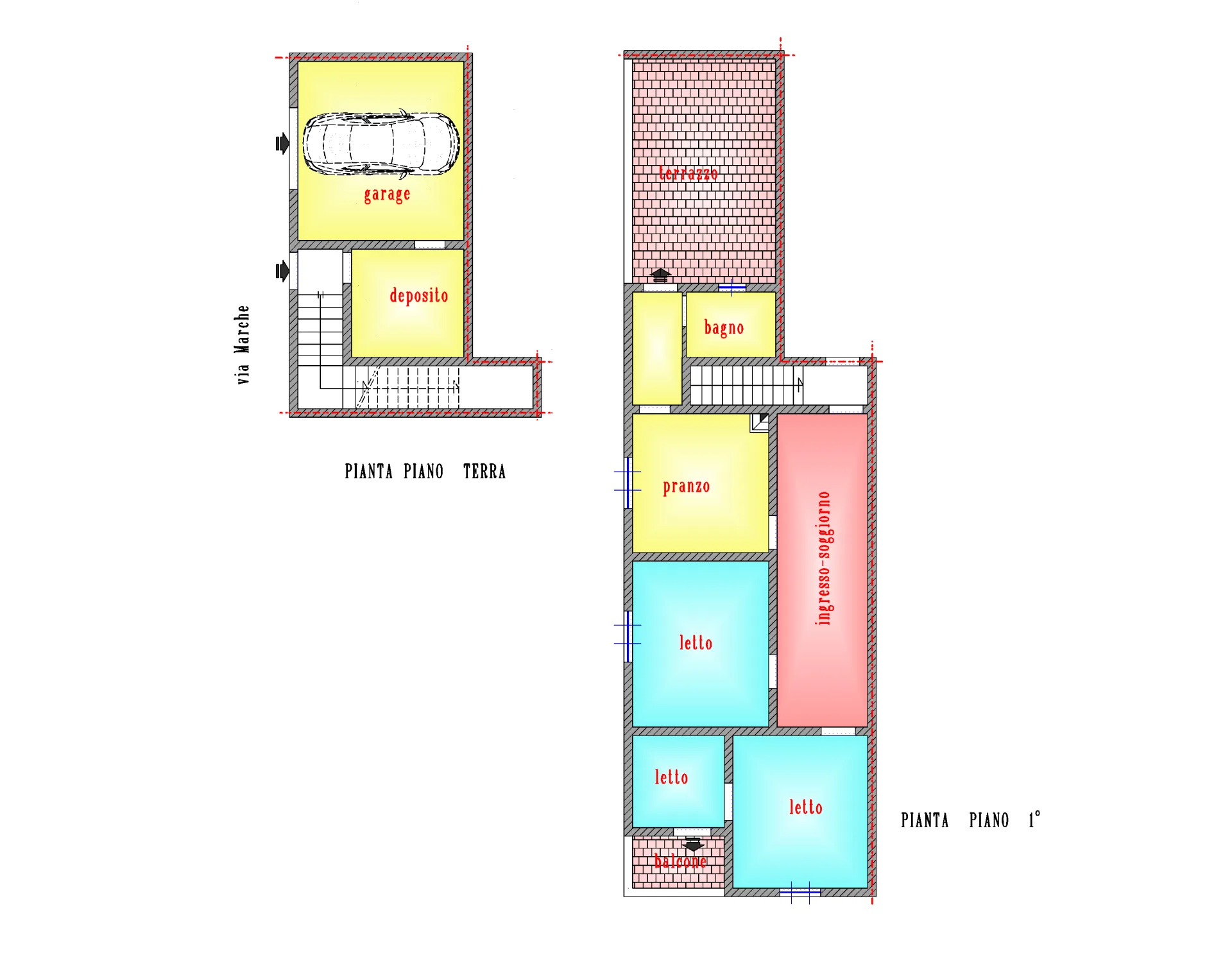
Planimetria
Clicca per ingrandire
Cod. rif.
#57
Trattativa Riservata
Mq
141
Locali
5
Bagni
1
Descrizione
🏡 In vendita – Abitazione al 1° piano con spazi esterni
Proponiamo in vendita un’abitazione civile posta al primo piano, caratterizzata da spazi comodi e ben distribuiti, con una superficie lorda di 105 mq, oltre a una verandina di 5 mq e un terrazzino di 31,50 mq, ideali per momenti di relax all’aria aperta.
L’immobile è composto da:
Ingresso/soggiorno
Sala da pranzo
2 camere da letto
Disimpegni
Bagno
L’accesso avviene da Via Marche tramite ingresso comune con l’unità immobiliare al piano terra (garage e deposito) e relativo vano scala.
La soluzione si presenta parzialmente da ristrutturare, offrendo la possibilità di personalizzare gli ambienti secondo le proprie esigenze.
📍 Zona ben servita
✨ Ottima distribuzione degli spazi
🌿 Terrazzo e verandina di pertinenza
Proponiamo in vendita un’abitazione civile posta al primo piano, caratterizzata da spazi comodi e ben distribuiti, con una superficie lorda di 105 mq, oltre a una verandina di 5 mq e un terrazzino di 31,50 mq, ideali per momenti di relax all’aria aperta.
L’immobile è composto da:
Ingresso/soggiorno
Sala da pranzo
2 camere da letto
Disimpegni
Bagno
L’accesso avviene da Via Marche tramite ingresso comune con l’unità immobiliare al piano terra (garage e deposito) e relativo vano scala.
La soluzione si presenta parzialmente da ristrutturare, offrendo la possibilità di personalizzare gli ambienti secondo le proprie esigenze.
📍 Zona ben servita
✨ Ottima distribuzione degli spazi
🌿 Terrazzo e verandina di pertinenza
Riepilogo
Abitazione a Piano 1° a Copertino (LE). 141 mq, 5 locali, 1 bagni. 1° di 2 piani senza ascensore. Cucina abitale, 1 balcone e un terrazzo piccolo, box singolo, giardino privato, riscaldamento autonomo, anno costruzione 1987, condizione Buono. Prezzo su richiesta.
Posizione indicativa. Per Street View o indicazioni usa “Apri in Google Maps”.